4.5 Zimmer Abwarts-Wohnung Attika

Winterhaldenstrasse 15, 3627 Heimberg

N E U 

ab 1. März 2026

 

Miete netto monatlich: Fr. 1740 

Nebenkosten akonto:   Fr.  280 

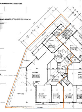
  • sehr grosszügiger Grundriss 182,6 m2 NWF
  • grosse und kleine Terrasse mit gedecktem Bereich und Sonnenstore
  • Cheminée
  • Bodenheizung
  • Bad mit Dusche und Badewanne
  • Gäste-WC
  • Lift
  • Einbauschränke und Bücherregale in Korridor mit Oberlicht
  • Tresor
  • herrliche Aussicht mit Alpenpanorama
  • nähe Wald
  • Neben- und Abstellraum
  • Kellerraum zur Mitbenützung
  • Eingangsbereich sowie Waschmaschine und Tumbler zur Mitbenützung
  • Warmwasseraufbereitung mit Sonnenkollektoren

Einstellhallenplätze oder Aussenabstellplätze können dazu gemietet werden

EHP: Fr 125

AP:    Fr. 40

 

Abwartsentschädigung

Fr. 240 brutto pro Monat

Zeitaufwand ca. 2 Stunden pro Woche. Zusätzliche Leistungen werden mit  Fr. 30 pro Stunde vergütet.

Der Betrag wird nicht von der Miete abgezogen, sondern mittels Arbeitsvertrag separat vergütet.

 

Eigentümerin ist die Christliche Gemeinde Heimberg. Die Abwartsaufgabe bezieht sich auf die Räume der Gemeinde - eine positive Einstellung zu christlichen Grundwerten ist deshalb wünschenswert. 

 

An Nichtraucher - Haustiere sind nicht erlaubt

 

Detailbeschreibung

Wohn- und Esszimmer   51.7 m2

  • Cheminée
  • Laminatboden
  • Direkter Zugang zu den Terrassen

Küche     15.8 m2

  • Induktionskochfeld / Dampfabzug / Geschirrspüler / Umluft Backofen
  • Kühlschrank mit Gefrierfach und Getränkeschublade 243lt
  • Stein-Abdeckung

Badezimmer     15.1 m2

  • Zwei Lavabo
  • Badewanne und separate Duschkabine
  • WC in separatem Abteil
  • Oberlicht

Foyer      20 m2

  • Oberlicht
  • Garderobenschrank
  • Gäste-WC
  • Gegensprechanlage

3 Schlafzimmer    23.1 + 19.1 + 12 m2

  • 2x Laminatboden
  • 1x Keramikboden

Terrasse 51 m2

  • Gedeckter Bereich
  • Sonnenstore
  • Windschutz
  • zweite kleine Terrasse 11.6m2

Grundrissplan


Sie interessieren sich für diese Wohnung? Dann füllen Sie das Formular unten aus

oder nehmen Sie Kontakt auf mit Herrn Andreas Schwab 033 437 54 74  /  076 204 82 23

Hinweis: Bitte die mit * gekennzeichneten Felder ausfüllen.